Beschrijving

Heb jij altijd al willen wonen in een jaren ’30 woning en kun je niet wachten om erin te trekken? Deze woning in de geliefde Zwolse Wijk is helemaal klaar om jou te verwelkomen. De wijk staat bekend om haar karakteristieke huizen en dat geldt zeker ook voor deze woning: onder andere authentieke glas-in-loodramen, een terrazzo vloer en een charmante erker maken dit tot een unieke woonplek.

Aan de Everhard van Bronkhorststraat 2 staat deze prachtige vrijstaande woning op een steenworp afstand van het nieuwe plantsoen. Hier bezoek je de herten of maak je ontspannen wandelingen om het water. Dat kan trouwens ook bij de IJssel, want vanuit je woning ben je zo bij de rivier en haar uiterwaarden.  

Behalve dat je komt te wonen in een authentiek huis in een populaire wijk, woon je straks ook op loopafstand van het historische centrum. Hier struin je door de oude straatjes van de Hanzestad of zoek je een gezellige kroeg op. Ook andere voorzieningen vind je op loop- en fietsafstand: het station, supermarkten, winkels, kinderopvang en scholen liggen binnen handbereik. 

Pluspunten

-	Prachtig afgewerkte woning en instapklaar
-	Authentieke jaren ’30 kenmerken
-	Energielabel C
-	10 Zonnepanelen (2023)
-	Vloer, muur- en dakisolatie
-	Buitenschilderwerk uitgevoerd in 2022 en 2025
-	Gelegen in de gewilde Zwolse Wijk op loopafstand van het centrum
-	Vier slaapkamers 
-	Garage naast de woning
-	Ruime, groene tuin
-	Dicht bij het centrum en alle voorzieningen 

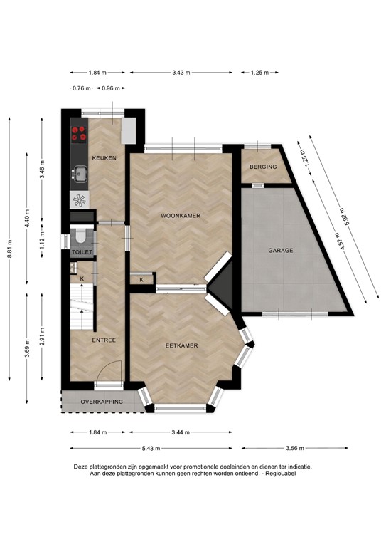
Begane grond

Bij aankomst vallen direct de authentieke glas-in-lood ramen bij de voordeur en de charmante erker op. De brede overstekken maken de stijlvolle entree compleet. Binnen wordt deze stijl voortgezet met een prachtige terrazzovloer in de hal. In de hal vind je de trap naar boven, evenals het toilet en een handige kelder voor extra opbergruimte.

Via de hal heb je ook toegang tot de tuingerichte woonkamer en de gesloten keuken. De woonkamer is heerlijk licht en mooi afgewerkt. Openslaande deuren geven direct toegang tot de groene tuin. Een eikenhouten vloer die over de hele begane grond ligt, zorgt voor een warme uitstraling. 

Aan de voorzijde vind je de eetkamer, waar je in stijl kunt dineren met vrienden en familie. Overdag valt het licht hier volop naar binnen. Behoefte aan wat privacy? Woon- en eetkamer zijn van elkaar te scheiden door elegante en-suite deuren.

Kenmerkend voor een jaren '30 woning is de dichte keuken, waar een oude kast een mooi contrast vormt met de verder moderne en strakke inrichting. De keuken is voorzien van alle apparatuur die je nodig hebt om lekker te koken, zoals een inductiekookplaat, combimagnetron, kokend waterkraan, koelkast, vaatwasser en afzuigkap. Ook vanuit de keuken is de tuin te bereiken.

Eerste verdieping

De trap leidt je naar de overloop van de eerste verdieping, waar de dakkapel aan de zijkant zorgt voor veel natuurlijk lichtinval. Op deze verdieping laten de kenmerkende glas-in-loodramen zich opnieuw zien en net als op de begane grond sieren ook hier paneeldeuren de ruimtes. De eikenhouten vloer zorgt wederom voor een sfeervol karakter.

Vanaf de overloop heb je toegang tot de badkamer en drie goede slaapkamers, waarvan de ouderslaapkamer heerlijk licht is door ramen over de hele breedte. Eén van de slaapkamers aan de voorkant is voorzien van een zeer ruime inbouwkast. De badkamer heeft een inloopdouche, wastafel en een tweede toilet. Vanuit de badkamer heb je toegang tot het balkon. 

Tweede verdieping

Vanaf de overloop bereik je ook de tweede verdieping, die bestaat uit twee ruimtes. In de eerste ruimte is de aansluiting voor wasmachine en droger, evenals de opstelplaats van de cv-ketel (Intergas, 2015). Ook vind je hier een uitstortgootsteen. In de andere ruimte vind je de vierde slaapkamer. 

Buitenruimte

De woning heeft een onderhoudsvriendelijke, groene achtertuin gelegen op het zuidwesten. De tuin biedt fijne plekken voor een tuinset of loungeplek. Hier is een berging aanwezig die je kunt gebruiken voor het opbergen van je tuinkussens of tuingereedschap.

Heb je meer ruimte nodig? Die is zeker aanwezig in de garage naast de woning. Deze bereik je via je eigen oprit aan de voorzijde die het ook mogelijk maakt om bijvoorbeeld een auto op eigen terrein te parkeren.

Deze informatie is met grote zorgvuldigheid samengesteld, aan de inhoud kunnen echter geen rechten worden ontleend. Wij aanvaarden geen aansprakelijkheid voor eventuele onjuistheden.

Kenmerken