Beschrijving

Ben je op zoek naar een sfeervolle woning in het hart van Deventer? Dan is deze karakteristieke woning aan de Schoutenweg 46 iets voor jou. Lees verder en ontdek wat deze woning en de omgeving jou allemaal te bieden hebben.

De charmante tussenwoning uit 1913 staat op een perceel van 71 m², heeft een gebruiksoppervlakte wonen van 54 m² en energielabel C. De woning is goed onderhouden en ademt tegelijkertijd de historie uit de bouwperiode. De ruime, multifunctionele kelder (van 21 m²!)  en de heerlijke stadstuin zijn absolute pluspunten. 

De woning staat in de 19e-eeuwse wijk Voorstad, dicht bij het centrum van Hanzestad Deventer. Binnen vijf minuten fietsen sta je midden op de bruisende Brink of struin je door de historische straatjes van de oude binnenstad. In het centrum vind je alle voorzieningen die je nodig hebt, maar ook dichter bij huis vind je op de Beestenmarkt meerdere supermarkten en andere winkels. Opvang, scholen en het station liggen op loopafstand. Een frisse neus haal je in het Rijsterborgherpark of je maakt een wandeling door de uiterwaarden van de IJssel. 

Pluspunten

-	Karakteristiek huis uit 1913
-	Goed onderhouden en instapklaar
-	Centrale ligging 
-	Heerlijke stadstuin met overkapping
-	Ruime kelder met veel mogelijkheden

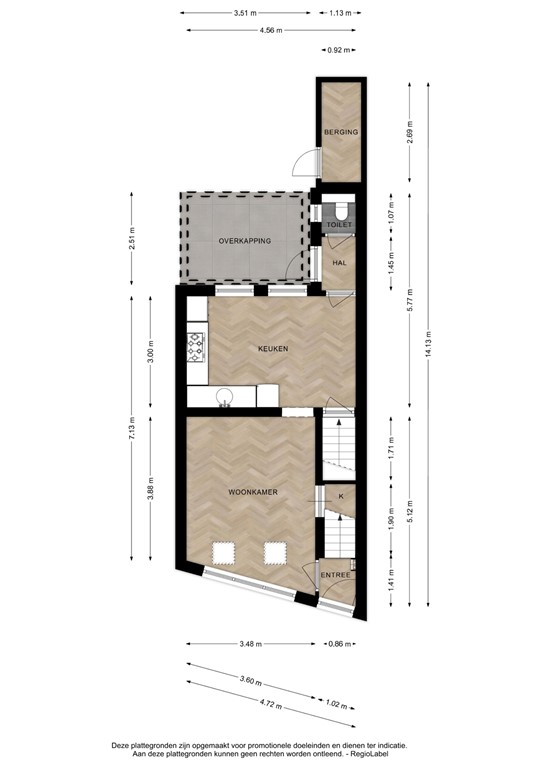
Begane grond

Bij aankomst word je meteen sfeervol ontvangen door een charmante woning waar een blauwe regen de voorgevel siert. Je komt de woning binnen in een entree met garderobe, meterkast en de trap naar boven. Vanuit de hal betreed je de woonkamer. De woonkamer is licht, heeft een charmante uitstraling en is voorzien van een mooie laminaatvloer. In de woonkamer is een trapkast aanwezig voor extra opslagruimte. 

Vanuit de sfeervolle woonkamer loop je richting de gesloten leefkeuken. Terwijl je gasten aan tafel zitten en jij met hen in gesprek blijft, maak je de lekkerste gerechten klaar. Alles is hiervoor aanwezig, want de keuken is voorzien van een vijfpitsgasfornuis met afzuigkap, vaatwasser, spoelbak, koelkast en combimagnetron. Via de keuken loop je een hal in aan de achterkant van de woning. Hier vind je het toilet en de deur naar de heerlijke stadstuin. 

Vanuit de keuken heb je toegang tot de ruime kelder. Deze is nu ingericht als slaapkamer, maar kun je helemaal naar eigen wens vormgeven. Dankzij de ramen in het plafond profiteer je in de ruimte van natuurlijk lichtinval en zou je hier ook goed een werkruimte van kunnen maken. In de kelder vind je de aansluiting voor de wasmachine en de droger. 

Eerste verdieping

Boven aan de trap bevindt zich de cv-ketel (Nefit, 2015) en kom je in een lichte, open ruimte die volop mogelijkheden biedt. Je kunt hier je slaapkamer inrichten of er eenvoudig twee kamers van maken. Vanuit de ruimte kijk je aan de achterkant uit op het sedumdak. De open ruimte geeft toegang tot de badkamer, met douche, wastafelmeubel en toilet.

Buitenruimte

Een mooie verrassing bij deze woning is de heerlijke, onderhoudsvriendelijke stadstuin. Hier vind je veel rust en privacy en geniet je na een drukke dag nog lekker van het mooie weer. In de tuin is een veranda aanwezig, waar je op de vlonderplanken een fijn loungeset neerzet. Strijk hier neer met een goed boek of nodig je vrienden uit om te toosten op je nieuwe woonplek. De tuin beschikt over een achterom en een berging voorzien van elektra.  

Deze informatie is met grote zorgvuldigheid samengesteld, aan de inhoud kunnen echter geen rechten worden ontleend. Wij aanvaarden geen aansprakelijkheid voor eventuele onjuistheden.

Kenmerken