Verkocht
Verkocht: Cartesiusstraat 12, 7412 EP Deventer
Beschrijving
Welkom op Cartesiusstraat 12, een sfeervolle woning uit 1941. Hier zijn authentieke details zoals paneeldeuren behouden gebleven, maar geniet je tegelijkertijd van modern wooncomfort. En dat alles dicht bij het gezellige centrum van Deventer en haar kenmerkende rivier de IJssel. Hier wil je wel wonen, toch?De woning met drie slaapkamers is recentelijk aan de buitenkant helemaal geschilderd, en dak-, en vloerisolatie zorgen ervoor dat je hier behaaglijk woont. Niet alleen binnen is het fijn, ook buiten is het goed vertoeven in de zeer ruime tuin mét overkapping.
Je woont straks midden op de Zandweerd, een zeer gewilde wijk. Dat is niet voor niets: hier zit je op fietsafstand van het centrum van de Hanzestad en slechts op 50 meter afstand van speeltuin De Zandweerd maar ook op een steenworp van de IJssel, haar uiterwaarden en het groene Nieuwe Plantsoen. Ook supermarkten, het station, scholen en winkels zijn allemaal snel bereikbaar.
Pluspunten
- Energielabel B
- Dak-, vloer-, en gedeeltelijke gevelisolatie
- Grotendeels dubbel glas en HR++ glas
- 10 zonnepanelen op de schuur
- Buitenschilderwerk in 2024 professioneel uitgevoerd
- Badkamer vernieuwd in 2018
- Diepe tuin met overkapping
- Dicht bij centrum en voorzieningen
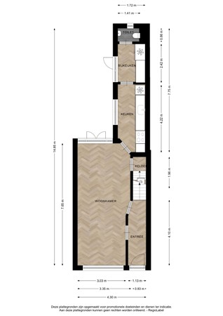
Begane grond
Via de entree kom je in de hal met karakteristieke terrazzo tegelvloer, die direct een warm welkom biedt. In de hal vind je de trap naar boven en de deuren die toegang geven tot de woon-/eetkamer.
Aan de voorkant van de woning vind je de woonkamer, waar je dankzij de ramen aan voor- en achterzijde profiteert van veel natuurlijk licht. Het eetgedeelte is tuingericht en ’s zomers zet je de tuindeuren open om de tuin bij de woning te betrekken. De paneeldeuren die de benedenverdieping sieren, geven de leefruimte veel charme.
De eetkamer, voorzien van airconditioning (Airwell, 2025) voor zowel koeling als verwarming, biedt toegang tot de kelder- en meterkast en de gesloten keuken. De stijlvolle Bruynzeel keuken is van alle gemakken voorzien, zoals een inductiekookplaat met oven, afzuigkap, vaatwasser en koelkast.
Ben je gek op koken? Dan ben jij hier in je element, want in de aanbouw vind je een verlenging van de keuken. Zo heb je nog meer ruimte om de lekkerste gerechten te bereiden. In de aangebouwde bijkeuken is verder een modern toilet aanwezig.
Eerste verdieping
Op de eerste verdieping vind je een ruime overloop met airco, vaste trap naar de tweede verdieping en toegang tot de badkamer en twee comfortabele slaapkamers. Eén van de slaapkamers beschikt over twee handige inbouwkasten voor extra opbergruimte. Originele paneeldeuren geven ook deze verdieping een extra charmant karakter.
De ruime badkamer heeft een wastafelmeubel, tweede toilet en een ligbad met douche. Na een drukke dag is het hier dus goed ontspannen. Daarnaast vind je op de eerste verdieping een waskast met aansluitingen voor wasmachine en droger.
Tweede verdieping
De tweede verdieping biedt een overloop met bergruimte achter knieschotten en een ruime slaapkamer met inbouwkasten. Hier vind je in de berging ook de opstelplaats van de cv-ketel (Remeha, 2016). Dankzij de dakkapel is de zolderkamer heerlijk licht en zou deze ook goed gebruikt kunnen worden voor andere doeleinden, zoals een thuiswerkplek.
Buitenruimte
De diepe en onderhoudsvriendelijke tuin ligt op het noordoosten. Het is een fijne plek om de dag goed te beginnen met een kop koffie in de ochtendzon. Achter in de tuin is een overkapping, waardoor je altijd een beschutte plek hebt om van je tuin te genieten.
De tuin heeft een achterom, en een chalet als schuur. Deze biedt veel ruimte aan bijvoorbeeld je tuinspullen of gereedschap, en om je fietsen te stallen.
Deze informatie is met grote zorgvuldigheid samengesteld, aan de inhoud kunnen echter geen rechten worden ontleend. Wij aanvaarden geen aansprakelijkheid voor eventuele onjuistheden.
Kenmerken
| Overdracht | |
|---|---|
| Referentienummer | 00324 |
| Vraagprijs | € 375.000,- k.k. |
| Status | Verkocht |
| Aanvaarding | In overleg |
| Aangeboden sinds | Maandag 1 december 2025 |
| Laatste wijziging | Vrijdag 26 december 2025 |
| Bouw | |
|---|---|
| Type object | Woonhuis, eengezinswoning, tussenwoning |
| Soort bouw | Bestaande bouw |
| Bouwperiode | 1941 |
| Dakbedekking | Bitumen Dakpannen |
| Type dak | Dwarskap |
| Isolatievormen | Dakisolatie Grotendeels dubbel glas HR-glas Spouwmuren Vloerisolatie |
| Oppervlaktes en inhoud | |
|---|---|
| Perceeloppervlakte | 136 m² |
| Woonoppervlakte | 78,11 m² |
| Woonkameroppervlakte | 25,63 m² |
| Keukenoppervlakte | 7,26 m² |
| Inhoud | 334 m³ |
| Oppervlakte overige inpandige ruimten | 11,18 m² |
| Oppervlakte externe bergruimte | 5,7 m² |
| Oppervlakte gebouwgebonden buitenruimte | 50 m² |
| Indeling | |
|---|---|
| Aantal bouwlagen | 3 |
| Aantal kamers | 4 (waarvan 3 slaapkamers) |
| Aantal badkamers | 1 (en 1 apart toilet) |
| Locatie | |
|---|---|
| Ligging | Dichtbij openbaar vervoer In woonwijk Nabij school |
| Tuin | |
|---|---|
| Type | Achtertuin |
| Hoofdtuin | Ja |
| Oriëntering | Noord-oost |
| Heeft een achterom | Ja |
| Staat | Normaal |
| Energieverbruik | |
|---|---|
| Energielabel | B |
| CV ketel | |
|---|---|
| CV ketel | Remeha |
| Warmtebron | Gas |
| Bouwjaar | 2016 |
| Combiketel | Ja |
| Eigendom | Eigendom |
| Uitrusting | |
|---|---|
| Warm water | CV-ketel |
| Verwarmingssysteem | Airconditioning Centrale verwarming |
| Keukenvoorzieningen | Inbouwapparatuur |
| Badkamervoorzieningen | Ligbad Toilet Wastafelmeubel |
| Heeft airco | Ja |
| Glasvezelaansluiting aanwezig | Ja |
| Tuin aanwezig | Ja |
| Heeft schuur/berging | Ja |
| Heeft een dakraam | Ja |
| Heeft zonnepanelen | Ja |
| Kadastrale gegevens | |
|---|---|
| Kadastrale aanduiding | Deventer A 5941 |
| Perceeloppervlakte | 136 m² |
| Eigendomsituatie | Eigen grond |