Verkocht onder voorbehoud
Verkocht onder voorbehoud: Oudegoedstraat 50, 7413 EH Deventer
€ 425.000,- k.k.
Beschrijving
Ben je op zoek naar een charmante jaren ’30 woning in Hanzestad Deventer? Dan is deze twee-onder-een-kapwoning aan de Oudegoedstraat 50 iets voor jou. Lees verder en ontdek wat deze woning en de omgeving jou allemaal te bieden hebben.De karakteristieke twee-onder-een-kapwoning is gebouwd in de jaren ’30, staat op een perceel van 141 m², heeft een gebruiksoppervlakte wonen van 125 m² en beschikt over energielabel C. In de woning zijn op diverse plekken authentieke details uit de bouwperiode terug te vinden, zoals paneeldeuren, glas-in-loodramen en een sfeervolle erker. Dit alles geeft de woning een uniek en warm karakter.
De woning staat op een steenworp afstand van het Nieuwe Plantsoen, waar je heerlijk kunt wandelen en de kinderen een bezoek kunnen brengen aan de dieren. Het bruisende centrum van Deventer is eenvoudig per fiets te bereiken, net als diverse voorzieningen zoals kinderopvang, scholen, supermarkten en andere winkels.
Pluspunten
- Authentieke jaren ’30 woning
- Lichte en ruime woonkamer met openhaard
- Heerlijke serre
- Vier slaapkamers
- Multifunctionele bovenverdieping
- Dicht bij het centrum en voorzieningen
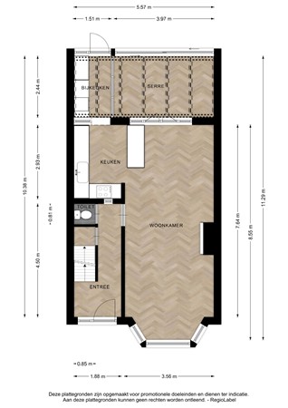
Begane grond
Bij aankomst vallen direct de authentieke jaren ’30 kenmerken op, zoals de charmante erker en glas-in-loodramen. Je betreedt de woning via de entree, waar je de trap naar de eerste verdieping en de deur naar de kelder met meterkast vindt. In de hal vind je ook het toilet en toegang tot de ruime woonkamer.
De ruimtelijke woonkamer krijgt door de grote ramen volop natuurlijk licht. In de winter kun je hier heerlijk genieten bij de openhaard. De erker met glas-in-loodramen aan de voorzijde en elegante paneeldeuren geven de begane grond een unieke sfeer.
De woonkamer grenst aan een riante open keuken met voldoende plek en apparatuur om uitgebreid te koken. De keuken is uitgerust met een inductiekookplaat, spoelbak met boiler, oven en vaatwasser.
Aan de achterzijde van de woning bevindt zich de heerlijke serre met schuifpui naar de tuin, waar je het hele jaar door van binnen én buiten kunt genieten. Door de pui open te zetten, kun je de tuin goed bij de serre betrekken.
Eerste verdieping
Vanaf de overloop heb je toegang tot de badkamer en drie fijne slaapkamers, waarvan één beschikt over een eigen balkon. Handig: alle slaapkamers zijn voorzien van inbouwkasten voor extra opbergruimte.
De badkamer is voorzien van een tweede toilet (sanibroyeur), douche een wastafel. Na een drukke dag kun je hier goed ontspannen in het ligbad.
Tweede verdieping
De open ruimte op zolder is dankzij de dakkapellen aan zowel de voor- als achterzijde heerlijk licht. Deze ruimte is ideaal als vierde slaapkamer, of als werk- of hobbyruimte. Achter diverse Louvre deurtjes is extra kastruimte gecreëerd. In de ruimte zelf is een boiler aanwezig (Thermex) en in een aparte ruimte is de opstelplaats van de cv-ketel (Remeha, 2005).
Buitenruimte
De woning beschikt over een heerlijke tuin op het noord oosten, met meerdere plekken waar je een tuinset neer kunt zetten of een loungehoek kunt creëren. Het is een veelbelovende tuin voor borrels in de zomer, maar ook wie liever een boek leest, kan dat hier in alle rust doen. In de tuin vind je een houten berging voor extra opslag.
Bijzonderheden
- De woning is op korte termijn te aanvaarden
- Een bouwkundige keuring is op ons kantoor aanwezig
De volgende clausules worden in de koopakte opgenomen:
- Ouderdoms-/asbestclausule.
Deze informatie is met grote zorgvuldigheid samengesteld, aan de inhoud kunnen echter geen rechten worden ontleend. Wij aanvaarden geen aansprakelijkheid voor eventuele onjuistheden.
Kenmerken
| Overdracht | |
|---|---|
| Referentienummer | 00288 |
| Vraagprijs | € 425.000,- k.k. |
| Inrichting | Niet gestoffeerd |
| Inrichting | Niet gemeubileerd |
| Status | Verkocht onder voorbehoud |
| Aanvaarding | In overleg |
| Aangeboden sinds | Vrijdag 10 oktober 2025 |
| Laatste wijziging | Maandag 3 november 2025 |
| Bouw | |
|---|---|
| Type object | Woonhuis, eengezinswoning, twee onder een kap woning |
| Soort bouw | Bestaande bouw |
| Bouwperiode | 1935 |
| Dakbedekking | Dakpannen |
| Type dak | Zadeldak |
| Isolatievormen | Dakisolatie Grotendeels dubbel glas HR-glas |
| Oppervlaktes en inhoud | |
|---|---|
| Perceeloppervlakte | 141 m² |
| Woonoppervlakte | 125 m² |
| Inhoud | 458 m³ |
| Oppervlakte overige inpandige ruimten | 5 m² |
| Oppervlakte externe bergruimte | 7 m² |
| Oppervlakte gebouwgebonden buitenruimte | 3 m² |
| Indeling | |
|---|---|
| Aantal bouwlagen | 3 (en 1 kelder) |
| Aantal kamers | 5 (waarvan 4 slaapkamers) |
| Aantal badkamers | 1 (en 1 apart toilet) |
| Locatie | |
|---|---|
| Ligging | Aan rustige weg Dichtbij openbaar vervoer In woonwijk Nabij school |
| Tuin | |
|---|---|
| Type | Voortuin |
| Oriëntering | Zuid-west |
| Staat | Normaal |
| Tuin 2 - Type | Achtertuin |
| Tuin 2 - Oriëntering | Noord-oost |
| Tuin 2 - Staat | Normaal |
| Energieverbruik | |
|---|---|
| Energielabel | C |
| CV ketel | |
|---|---|
| CV ketel | Remeha |
| Warmtebron | Gas |
| Bouwjaar | 2005 |
| Combiketel | Ja |
| Eigendom | Eigendom |
| Uitrusting | |
|---|---|
| Warm water | CV-ketel Elektrische boiler |
| Verwarmingssysteem | Centrale verwarming Open haard |
| Keukenvoorzieningen | Inbouwapparatuur |
| Badkamervoorzieningen | Douche Toilet Wastafel |
| Heeft een open haard | Ja |
| Glasvezelaansluiting aanwezig | Ja |
| Tuin aanwezig | Ja |
| Heeft schuur/berging | Ja |
| Kadastrale gegevens | |
|---|---|
| Kadastrale aanduiding | Deventer B 12224 |
| Perceeloppervlakte | 141 m² |
| Omvang | Geheel perceel |
| Eigendomsituatie | Eigen grond |